Wybór okien do domu jednorodzinnego na naszym przykładzie.
Każdy inwestor podczas budowy swojego domu, prędzej czy później, musi się zastanowić nad stolarką okienną. Wybór okien na początku był dla nas kwestią estetyczną, która dotyczyła bardziej bryły budynku. O pozostałych rzeczach dotyczących wyboru okien zaczęliśmy myśleć dopiero w momencie szukania oferty na okna. Przeczytaj jak to wyglądało u nas, z jakimi problemami się spotkaliśmy i jakiego wyboru dokonaliśmy.
Jeżeli interesuje Cię wybór okien to koniecznie sprawdź poprzedni wpis, w którym znajdziesz “9 rzeczy, na które warto zwrócić uwagę wybierając okna”.
Ca znajdziesz w tym wpisie
Nasze założenia co do projektu – okna
Nasz dom powstał na podstawie projektu indywidualnego. Architekt zaprojektował budynek na podstawie naszych wytycznych jakie mu przekazaliśmy, oraz uwzględniając Miejscowy Plan Zagospodarowania Przestrzennego. Założenia co do projektu były połączeniem naszych potrzeb, gustu oraz marzeń dotyczących naszego przyszłego domu.
Od zawsze bardzo podobały nam się bryły domów z dużymi przeszkleniami, dlatego wśród naszych założeń znalazły się:
- duże przeszklenia (duża ilość światła, przestrzeń),
- wysokie okna od podłogi do sufitu w całym domu,
- duże, bezprogowe wyjście na taras tak aby latem taras i wnętrze domu stanowiły spójną całość. Zależało nam na tym aby granice między tym co wewnątrz i na zewnątrz zacierały się,
- określiliśmy budżet jaki posiadamy na całą inwestycję. Architekt miał dostosować projekt również w tym zakresie (całość inwestycji do stanu deweloperskiego nie mogła przekroczyć 400 000 zł)
O naszych pozostałych założeniach co do projektu możesz przeczytać w tym wpisie.
Realizacja naszych założeń przez architekta
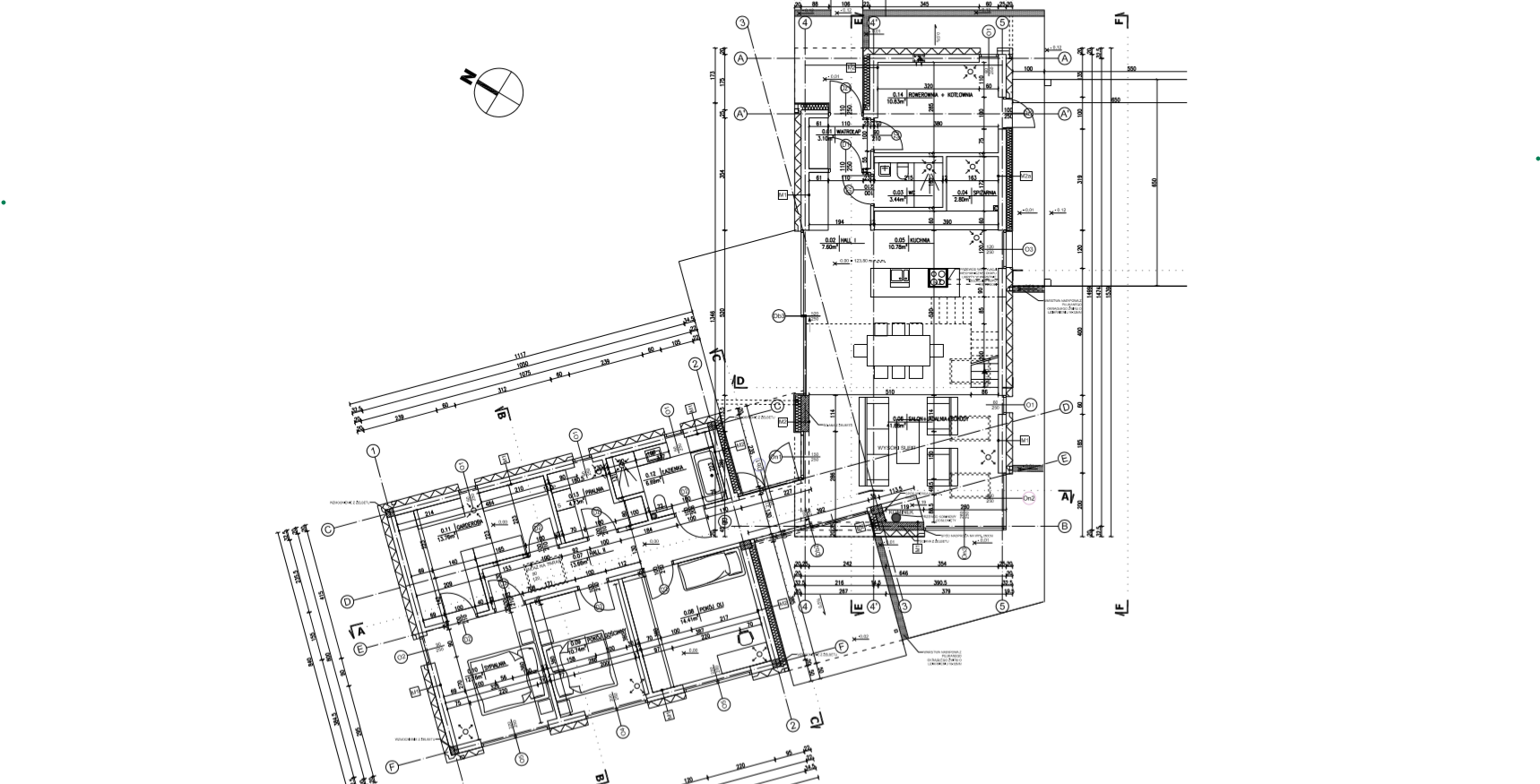
Powyżej zamieściłam rzut naszego domu, który jest z pozoru prosty, choć nietypowy. Ciekawa bryła powstała ze względu na istniejący na naszej działce teren zielony (wyłącznie w dokumencie jakim jest Miejscowy Plan Zagospodarowania Przestrzeni), na którym nie mogliśmy się pobudować. Dzięki temu powstał oryginalny projekt, realizujący praktycznie wszystkie nasze założenia. Dziś skupię się na tym co architekt ujął w projekcie, biorąc pod uwagę nasze wytyczne dotyczące okien.
Nasz dom składa się z dwóch brył. Jedna to strefa dzienna z wysokim sufitem katedralnym czyli tzw. stodoła. Druga część domu to bryła z płaskim dachem, w której znalazła się część nocna. Obie bryły zostały połączone ze sobą szklanym łącznikiem, który jednocześnie jest przedłużeniem tarasu wychodzącego na dwie strony ogrodu (północną i południową).
Wysokie okna od podłogi do sufitu
Architekci z biura Z3Z wzięli pod uwagę to o czym mówiliśmy, czyli prawie wszystkie okna w naszym domu (z wyjątkiem okna narożnego z ławką, okien połaciowych i świetlika w korytarzu) sięgają od podłogi praktycznie do sufitu czyli mają wysokość 240cm.
Duże przeszklenia
W projekcie zastosowano okna stałe czyli tzw. fixy. Są to okna od szerokich 200 cm, po wąskie 60 cm okienka, które wyglądają bardzo estetycznie dzięki swoim wąskim ramom o szerokości 6 cm. Kolejne to okna uchylno-rozwierne połączone z fixem gdzie ich szerokość to ok. 200 cm (zastosowane w sypialniach). Grubość ramy w skrzydle okna uchylno-rozwiernego wynosi 8 cm, więc w naszym przypadku w połączeniu z oknami stałymi widać tą różnice szerokości ram (zdjęcie poniżej).
W celu doświetlenia część dziennej i antresoli architekt zaproponował okna połaciowe, których w projekcie znalazło się 9 szt.o wymiarach 94x180cm.
Duże bezprogowe okno tarasowe
Jak wcześniej wspomniałam kolejnym założeniem, na którym nam zależało było duże, bezprogowe wyjście tarasowe, które nie będzie tworzyło granicy między wnętrzem domu a tarasem. Duże gabaryty, łatwość otwierania i bezprogowe przejście to bezwzględne zalety okien przesuwnych typu HS. Architekt spełnił nasze założenia i umieścił w projekcie okno przesuwne HS. Co więcej znalazły się w nim nawet dwa takie okna, ponieważ mamy dwa wyjścia na taras (północny i południowy). Jedno o szerokości 520 cm (ostatecznie zamontowaliśmy okno HS o szerokości 450 cm), drugie 392 cm (ostatecznie zamontowaliśmy okno HS o szerokości 378 cm). Zmniejszenie rozmiaru największego okna (5200 cm na 4500 cm), wynikało z tego, że producent nie podjął się wykonania okna w systemie HS takich gabarytów.
Do projektu został dołączony wykaz stolarki okiennej, który wraz z powyższym rzutem teoretycznie powinien wystarczyć do tego, żeby wybór i zakup okien nie stanowił żadnego problem. Jednak tak nie było.
Wybór okien- co przysporzyło najwięcej problemów
Najwięcej czasu przy wyborze okien zajęła część dzienna oraz przeszklenia przy tarasie. Projekt zawierał szklany łącznik, tworzący przejście między dwoma tarasami. Dzięki temu wyglądał imponująco i ciekawie. Jednak nie zdawaliśmy sobie wtedy sprawy jak bardzo kosztowne i problematyczne będzie zaproponowane rozwiązanie.
Poniżej znajduje się zaznaczony na niebiesko fragment przejścia między tarasami. Na jeden z tarasów było zaplanowane wyjście bezprogowe HS (zielone Db2). Po drugiej stronie możliwość przejścia drzwiami, które miały się otwierać na zewnątrz (pomarańczowy Db1), oraz dodatkowo duże wyjście na taras oknem bezprogowym HS (fioletowy Db3).

Problem nr 1 – okno tarasowe otwierające się na zewnątrz
Problem polegał na tym, że zaprojektowane okno było otwierane na zewnątrz (Db1). Determinowało to drzwi w ramach aluminiowych, podobne do tych w witrynach sklepowych. Nie braliśmy ich pod uwagę ze względu na koszt, oraz inny wygląd niż pozostałych okien. Powstał pomysł wykonania standardowego okna balkonowego. Niestety takie okna otwierają się tylko do wewnątrz więc powstały dwa problemy. Pierwszy to taki, że okna balkonowe mają próg, i jeżeli miał być to łącznik między domem a tarasami to chcieliśmy go wyeliminować. Drugi to taki, że otwieranie do środka powodowało kolizję w przejściu z części dziennej domu do części nocnej. Połączenie łącznikiem obu tarasów w trakcie większego grilla było fajnym pomysłem. Niestety w takich okolicznościach są zazwyczaj dzieci i to w zupełności wystarczyło aby uznać rozwiązanie z oknami balkonowymi za niebezpieczne.
Zastosowanie w tym miejscu okna PSK również odrzuciliśmy, ze względu na próg oraz zbyt wąskie skrzydło.
Problem nr 2 – zbyt duże koszty okien typu HS
Okna bezprogowe czyli HS były naszym marzeniem. Niestety ich cena spowodowała, że do podjęcia decyzji o ich zakupie podchodziliśmy wiele razy. Rozważaliśmy opcję zmian względem projektu i zamianę HS-ów na okna uchylno-przesuwne czyli tak zwane PSK. Łączyliśmy stałe duże przeszklenia z drzwiami balkonowymi w różnych konfiguracjach. Próbowaliśmy zmniejszać przeszklenia, żeby było to dla nas bardziej korzystne finansowo. Kombinowaliśmy okna stałe czyli fixy, w różnych podziałach i bez nich. Im dłużej o tym myśleliśmy, tym bardziej nie wiedzieliśmy co robić. Kalkulacji i opcji przybywało, a okna naszych marzeń były wszędzie tak samo drogie.
Dla zobrazowania sytuacji, za mniejszy HS (392 cm) ceny wahały się od ok. 14 000 zł do 19 000 zł, a za większy (520 cm- przy czym tu również wielkości były modyfikowane w zależności od sprzedawcy) ceny były od ok. 16 000 zł do 21 000 zł.
Problem nr 3 – zbyt dużo drogich okien połaciowych
Kolejnym elementem gdzie musieliśmy szukać kompromisu były okna połaciowe, których jak wcześniej pisałam w projekcie było 9 szt. (o wymiarach 94×180 cm). Co prawda miały doświetlić przestrzeń strefy dziennej oraz antresolę, ale jedno okno kosztujące około 1400 zł, to wystarczający argument, żeby zastanowić się nad zmianami. Jeżeli nawet nie w zakresie ilości, to chociaż wielkości okien połaciowych.
Emocje, dylematy i obawy
Do wyboru okien podchodziliśmy bardzo emocjonalnie, ponieważ jak do tej pory i tak musieliśmy iść na kompromis związany z bryłą budynku (zawsze myśleliśmy o domu z płaskim dachem, którego nie przewidywał MPZP dla naszej działki). Kolejny kompromis względem okien oznaczał dla nas pogodzenie się z tym, że nie stać nas na realizację naszych marzeń w zakładanym zakresie. Dylematy dotyczyły tego, czy architekt faktycznie prawidłowo skalkulował koszty naszego domu, według założeń naszego budżetu. Obawialiśmy się, że tak duży wydatek poniesiony na wczesnym etapie inwestycji uniemożliwi wykończenie domu w ramach naszego budżetu . Nasze obawy i dylematy nie kończyły się wyłącznie na kosztach zaproponowanych rozwiązań. Okno przesuwne typu HS miało ważyć ok. 600 kg w całości. Baliśmy się o to, czy tego typu okna sprawdzą się dla nas, czy takie okno będzie się lekko otwierało, czy nie sprawi problemów dziecku, albo może będzie awaryjne. (O oknie HS napisze osobny wpis:)). Było wiele niewiadomych.
Jak to się potoczyło
Jak większość inwestorów, na początku wysyłałam wykaz stolarki okiennej do kilku firm. Następnie odwiedziłam kilka pobliskich salonów okiennych. Z doświadczenia wiem, że bardziej doprecyzowana oferta to ta, na temat której osobiście rozmawiasz ze sprzedawcą. Nie polecam robić kilkunastu lub kilkudziesięciu ofert (bo i tak się zdarza wśród inwestorów), ponieważ jest to strata czasu obu stron. U nas przy ok. 10 ofertach było już tego sporo. Analiza każdego okna z osobna i tego co zostało zaproponowane, w jakich parametrach itd. zajęła dużo czasu. Na jednych oknach z ofert były lepsze ceny, na innych gorsze, koniec końców różnica w ostatecznych ofertach była przeważnie minimalna.
Jednak dodam, że u różnych sprzedawców te same okna (firma, okucia, parametry itd.) różniły się ceną nawet o ok. 300 zł na oknie, w przypadku okna przesuwnego HS ta różnica wynosiła nawet 5000 zł. Lepiej więc wybrać kilka różnych firm, a potem w wybranej ofercie okien sprawdzić jeszcze innego sprzedawcę tego samego typu okien.
Wymarzone okna

Na szczęście pomimo wielu rozterek nie zrezygnowaliśmy z okien Db1 i Db3, na rzecz innego rozwiązania. Jesteśmy bardzo zadowoleni z okien przesuwnych w systemie HS. Choć przyznam, że ten wydatek na początku budowy był znaczący to teraz cieszy oko i sprawdza się naprawdę świetnie.
Zrezygnowaliśmy z przejścia z jednego tarasu na drugi szklanym łącznikiem. W miejsce drzwi aluminiowych wstawiliśmy fix czyli okno stałe. Na tarasy można przejść oknami HS i z perspektywy czasu to była bardzo dobra decyzja z punktu widzenia praktycznego jak i budżetowego.
Jeżeli chodzi o okna połaciowe to ostatecznie postanowiliśmy doświetlić wyłącznie antresolę. W związku z tym z 9 okien o wymiarach 94×180 cm zostawiliśmy 4, zmniejszone do wymiaru 94×140 cm. Zmniejszenie ilości oraz wymiarów okien wiązało się oczywiście z kosztami i koniecznością ich minimalizowania. W tym wypadku to była również dobra decyzja, ponieważ okna parteru wystarczająco doświetlają część dzienną.
Nasz wybór okien
Zdecydowaliśmy się na ofertę lokalnego producenta okien w systemie Schüco. Wybór okien padł na Schüco LivIng w pakiecie trzyszybowym z profilem 7-komorowym oraz uszczelkami EPDM w profilach. Jeżeli chodzi o okna przesuwne to zdecydowaliśmy się na okna w systemie przesuwnym Schüco HS ThermoSlide.
Wszystkie okna (poza połaciowymi) są plastikowe, głównie ze względu na cenę i wygodę w utrzymaniu, oraz wygląd jakiego oczekiwaliśmy. Zdecydowaliśmy się wybrać okna w kolorze antracytowym od strony zewnętrznej. Wewnątrz część dzienna ma pozostawiony kolor antracytowy (dla kontrastu z białymi ścianami), natomiast część nocna ma wszystkie okna wewnętrzne w kolorze białym. Cenimy sobie prostotę więc chcieliśmy gładką okleinę. Jednak po wysłuchaniu kilku argumentów o tym jak na gładkich oknach w kolorze antracytowym odznaczają się palce i widać brud, zrezygnowaliśmy z gładkiej okleiny. Wybraliśmy okleinę przypominającą drewno. Wtedy wybór był trudny, ponieważ ta okleina przypominająca drewno wydawała nam się zwyczajnie brzydka. Obecnie, jak się możesz domyślać, kompletnie nie zwracamy na to uwagi, za to okna nadal urzekają nas swoją prostotą.
Jeżeli chodzi o wybór okien pod względem parametrów, to przenikalność cieplna w zależności od okna wynosi od Uw=0,99-0,71. W przypadku HS-ów, czyli drzwi przesuwnych Thermo Slide, ta wartość wynosi Uw=0,81 i Uw=0,82 (w zależności od wielkości). Porównując ofertę okien z innymi firmami wybrany sprzedawca nie wychodził najkorzystniej cenowo w mniejszych oknach. Jednak posiadał najlepszą ofertę cenowa na Hs-y, oraz okna w sypialniach. Dodatkowym atutem tego producenta był również koszt montażu wraz z zastosowanymi taśmami do ciepłego montażu. Zamówienie na okna dla całego domu (z wyjątkiem okien połaciowych), z dwoma wymarzonymi oknami HS wyszły taniej niż u innych sprzedawców. Łączny koszt okien wraz z montażem wyniósł trochę ponad 50 000 zł. W tym same okna HS stanowiły większość, ich koszt to niemal 30 000 zł.
Podsumowanie
Wybór okien to była jedna z dwóch najtrudniejszych decyzji w procesie budowy. Marzenia o dużych przeszkleniach i oknach tarasowych, bezprogowych to jedno. Rzeczywistość w tym zakresie pokazała, że nie są to rozwiązania tanie, a w związku z tym decyzje do podjęcia wyjątkowo trudne.
Założenia i marzenia to jedno, projekt to drugie a budżet niestety, najczęściej ma swoje ograniczenia. Życzę Ci żebyś nie musiał zbyt często spotykać się w trakcie swojej budowy z dylematem: marzenie czy rzeczywistość?:)
P.S Chciałam, żeby wpis był czytelny i nie odstraszał swoją objętością. Jeżeli dotrwałeś do końca to zapraszam do pozostałych wpisów o oknach:
- Zakup okien. 9 rzeczy na które warto zwrócić uwagę.
- Opieka sprzedawcy oraz montaż naszych okien.
- Wybór bezprogowych drzwi tarasowych typu HS
Jeżeli masz ochotę możesz pobrać bezpłatny poradnik “Jak przygotować się przed budową domu.” Po zapisaniu się do newslettera będziesz na bieżąco z nowymi wpisami 😉 Kliknij




3 komentarze
Gabi
Super wyglądają okna u Was, z termiką też okej? U nas większe przeszklenia. Co prawda nie mamy drzwi tarasowych, ale powierzchnia przeszklenia jest większa. Ona prolux z Oknoplast, ktore mamy wyposażone są w smuklejsze ramy przez co więcej światła dociera do wnętrza.
Malgorzata_Kruszewska
Dziękuje, z termiką ok. Myślę, że przy dużych przeszkleniach te smuklejsze ramy nie maja znaczenia jeżeli chodzi o ilość światła 😉
JURI
wg mnie super, że dzielicie się tak cennym doświadczeniem, bo niestety wcale nie tak łatwo znaleźć dobre okna – ja długo szukałem czegoś w odpowiedniej cenie, firmaBUDVAR w pełni spełniła moje oczekiwania 🙂 genialne okna w świetnej cenie!